Die sichere Rinne für punktgenaue Entwässerung grosser Flächen. Extrem stabil und vielfältig.
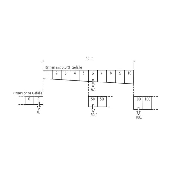
Mit BIRCOsir® lassen sich unterschiedlichste Entwässerungskonzepte realisieren. Die große Auswahl an Abdeckungen eröffnen nahezu unbegrenzte Anwendungsmöglichkeiten.




