Baumat Logo
Zum Shop
Merklisten anzeigen
  1. Gesamtsortiment
  2. >
  3. Betonwaren
  4. >
  5. Kanalisation
  6. >
  7. Abläufe
1 / 3

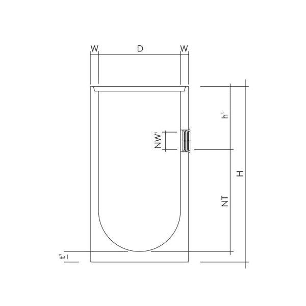
Strassenablauf mit Aussparung, mit Schachtfutter, D 70, H 140, NW 150mm

mit Aussparung, inkl. TOK-Ring-Schachtfutter für PVC-, HDPE- oder PP-Rohre

Spezifikationen

  • Marke: Creabeton
  • Typ: AD
  • Wandstärke (cm): 7
  • Ø (cm): 70
  • Anwendungsbereich: Kanalisation
  • Höhe (cm): 140
  • Höhe1 (cm): 54
  • Nutztiefe (cm): 77
  • Bodenstärke (cm): 9
  • Gewicht (kg): 840
  • Bestellnummer: 115144

Fehler entdeckt? Wir freuen uns über Ihre Rückmeldung.

Strassenablauf mit Aussparung, mit Schachtfutter, D 70, H 140, NW 150mm
Artikelnr.
10150054
Bezeichnung
Strassenablauf mit Aussparung, mit Schachtfutter, D 70, H 140, NW 150mm
Preis pro
1 Stück
Brutto
Verfügbarkeit
Anzahl