Baumat Logo
Zum Shop
Merklisten anzeigen
  1. Gesamtsortiment
  2. >
  3. Betonwaren
  4. >
  5. Kanalisation
  6. >
  7. Betonrohre
1 / 3

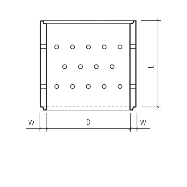
Crea Betonversickerungsrohr unbewehrt gelocht D 150 cm L 100 cm W 10 cm

Betonversickerungsrohre sind robuste und langlebige Bestandteile von Sickerschächten. Sie weisen mehrere Reihen von Sickerlöchern auf. Durch diese Löcher versickert anfallendes Meteorwasser in den Untergrund und gelangt schliesslich ins Grundwasser. Unsere Betonversickerungsrohre übernehmen somit eine ökologisch wichtige Funktion, denn sie sorgen dafür, dass der Wasserkreislauf geschlossen wird.

Anordnung der Sickerlöcher: L 50 cm, 2 Reihen L 75 cm, 3 Reihen L 100 cm, 4 Reihen

Spezifikationen

  • Typ: AD
  • Marke: Creabeton
  • Länge (cm): 100
  • Wandstärke (cm): 10
  • Ø (cm): 150
  • Anwendungsbereich: Kanalisation
  • Gewicht (kg): 1200
  • Bestellnummer: 123137

Fehler entdeckt? Wir freuen uns über Ihre Rückmeldung.

Crea Betonversickerungsrohr unbewehrt gelocht D 150 cm L 100 cm W 10 cm
Artikelnr.
10157167
Bezeichnung
Crea Betonversickerungsrohr unbewehrt gelocht D 150 cm L 100 cm W 10 cm
Preis pro
1 Stück
Brutto
Verfügbarkeit
Anzahl